Om siden
Opret bruger / Log ind
Frihedsmuseets fotoarkiv
Download
Del
Beskrivelse
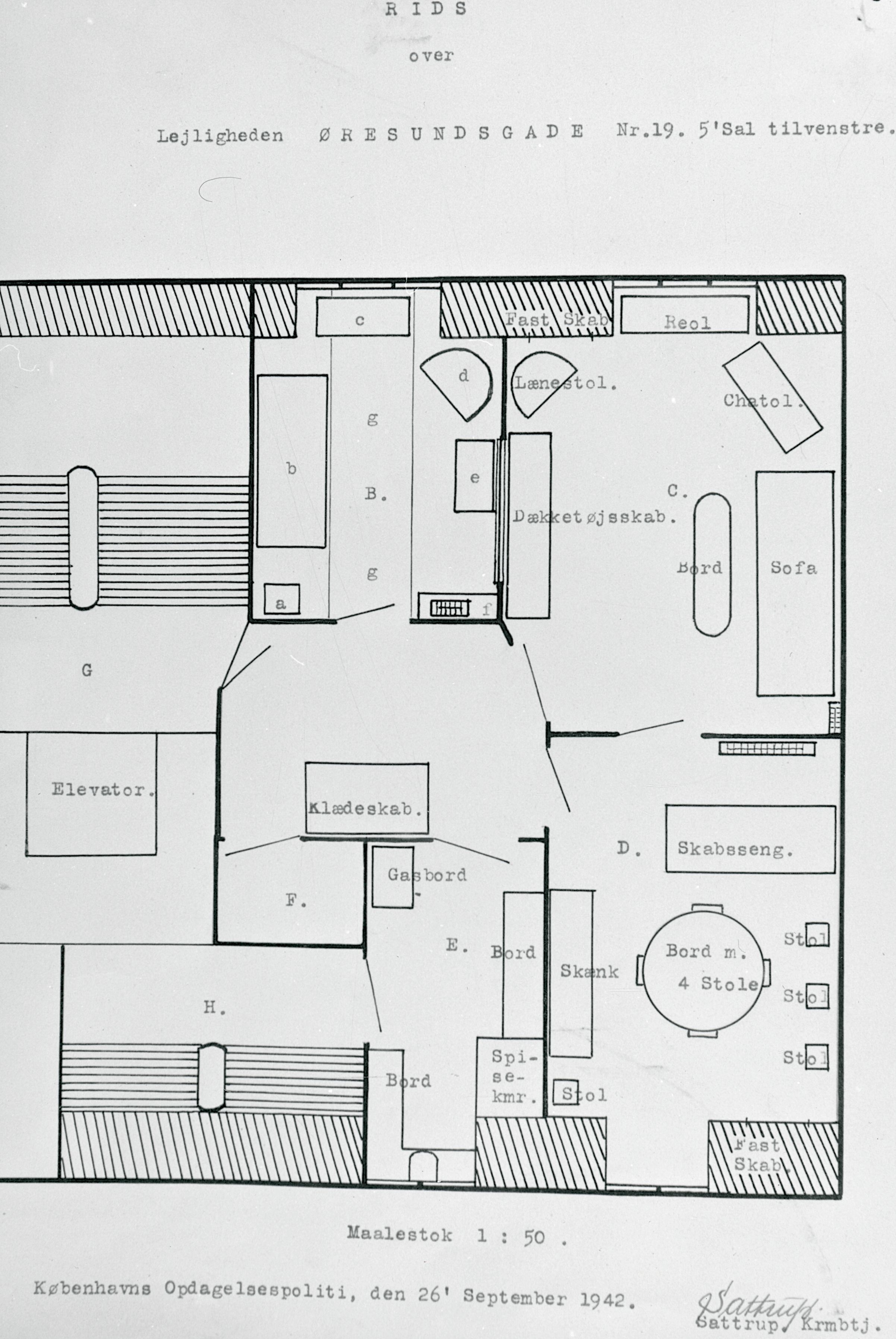
Tegning af den lejlighed i Øresundsgade, hvor SOE-lederen Chr. Michael Rottbøll blev dræbt af dansk politi den 26. september 1942.
Tid
Senest opdateret
Wednesday, July 13, 2022
Placering
Koordinater
Emneord
Nationalmuseet
Emne
Forbindelsen med SOE og OSS
Faldskærmsfolk
Kommentarer
Detaljer
Licens
No known rights
Kilde
Nationalmuseet, Danmark
Negativnummer
13.394
Fil-ID
FHM-199592
Filnavn
11A0000007.tif
Original filstørrelse
25 MB
Original opløsning
2404x3591 pixels
Licens
All Rights Reserved
Kilde
Nationalmuseet, Danmark
Fil-ID
FHM-199588
Filnavn
11A0000007-01.tif
Original filstørrelse
8 MB
Original opløsning
1871x1526 pixels
OK
Download JPEG
2404x3591 pixels -
Licens:
No known rights
Download original (TIFF Image)
2404x3591 pixels -
Licens:
No known rights
-
25 MB
Billedet kan desværre ikke downloades, da det er rettighedsbelagt.
https://samlinger.natmus.dk/fhm/asset/199592
Kopiér link
Fast bredde og højde
x
pixels
Fast bredde
x
pixels
Fast højde
x
pixels
100% bredde
behold billedformat
100% højde
behold billedformat
Kopiér nedenstående HTML
Kopiér HTML-kode
https://samlinger.natmus.dk/fhm/asset/199588
Kopiér link
Fast bredde og højde
x
pixels
Fast bredde
x
pixels
Fast højde
x
pixels
100% bredde
behold billedformat
100% højde
behold billedformat
Kopiér nedenstående HTML
Kopiér HTML-kode
Frihedsmuseets fotoarkiv
Tegning af den lejlighed i Øresundsgade, hvor SOE-lederen Chr. Michael Rottbøll blev dræbt af dansk politi den 26. september 1942.